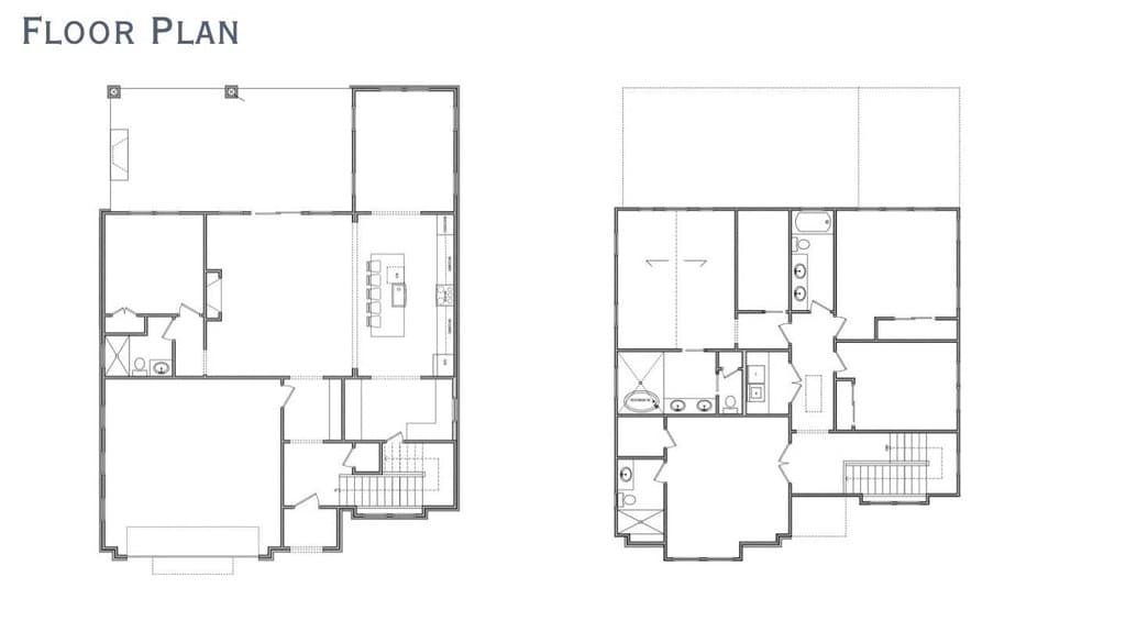
1646 Arnold Dr
Single Family

$1,315,000

1646 Arnold Dr, Charlotte

5

Beds

4

Baths

3,010

Sqft

Built

Photos (20)

1646 Arnold Dr photo 1
1 / 20