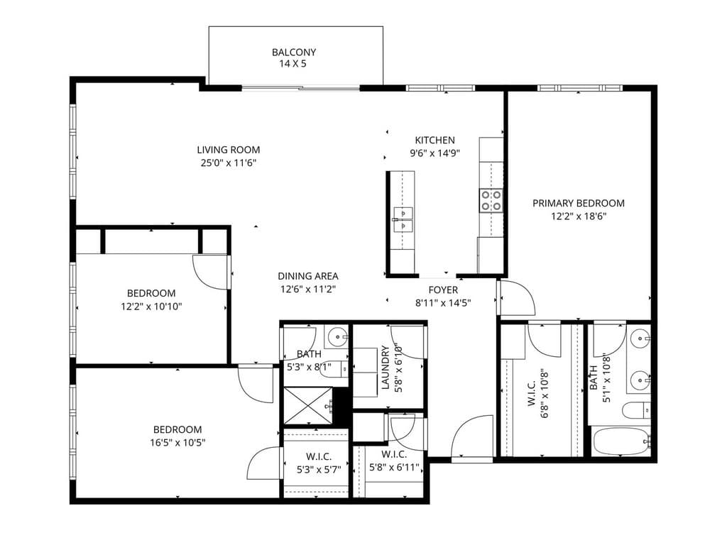
811 Chicago Ave Apt 308
Condo

$470,000

811 Chicago Ave Apt 308, Evanston

3

Beds

2

Baths

1,600

Sqft

Built

Photos (20)

811 Chicago Ave Apt 308 photo 1
1 / 20