262 Estoria St SE, Atlanta, GA
0 bd · 0 ba · 0 sqft Land listed at $319,900 in the Cabbagetown neighborhood.
About this home
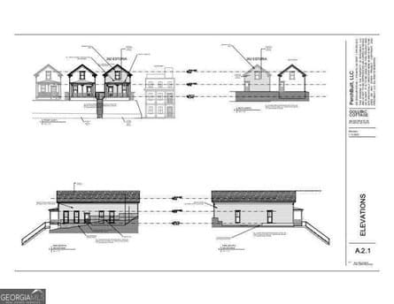
RARE CABBAGETOWN VACANT LOT - Thanks for your interest in this developed ready-to-build lot in the heart of Cabbagetown on Estoria Street. Set atop a hill overlooking the city with rear alley access, the lot is cleared, has new brick sidewalks and granite curbs, a new sewer tap, a brand new retaining wall and architectural plans for a 1960sf 2/2.5 home that is fully approved with the Urban Design Commisison and the Cabbagetown Historic Association. All a new owner needs to do is submit construction plans for final building permit at the City of Atlanta which is a straight-forward and simple process that takes 4-6 weeks. The property has approximately $50,000 of cash invested in the required sidewalks, granite curbs, sewer taps, retaining walls, surveys, architectural plans, and permitting costs. Add to that the year+ of hard work to get to the point where the homes is through the hard part of the permitting process. The value of the home, once built, will be ~1M so this is a low risk and high reward opportunity to build a dream home or to have a profitable investment project in one of the best and most central historic neighborhoods in the city.
Property details
- Price
- $319,900
- Bedrooms
- 0
- Bathrooms
- 0
- Lot size
- 2,614 sqft
- Type
- Land
- Days on market
- 102
- Est. property tax
- $2,943/yr · $245/mo · 0.92% GA avg
Estimated monthly payment
Can I afford this?
See what fits your income
Price history
- Mar 27, 2026$319,900Price change
- Mar 27, 2026$319,900Price change
- Jan 14, 2026$324,900Initial list price
- Jan 14, 2026$324,900Initial list price
Location
This home is located in Atlanta, GA. Browse more Atlanta listings on the Atlanta market page or explore the full Atlanta market report.
About Atlanta: Atlanta is the capital and most populous city of the U.S. state of Georgia. It is the county seat of Fulton County and extends into neighboring DeKalb County. With a population of 498,715 at the 2020 census and an estimated 520,070 in 2024, Atlanta is the eighth-most populous city in the Southeast and the 36th-most populous city in the United States. Atlanta is classified as a Beta+ global city. The Atlanta metropolitan area has an estimated population of over 6.4 million and is the sixth-largest metropolitan area in the United States. Situated among the foothills of the Appalachian Mountains at an elevation of just over 1,000 feet (300 m) above sea level, Atlanta features a unique topography that includes rolling hills, lush greenery, and the densest urban tree coverage of any major city in the United States. (source: Wikipedia)
Climate: Average year-round temperature is 63°F with 206 dry days per year and 48.8 inches of annual rainfall.
Home Intelligence
Neighborhood (zip 30316)
Median age is 36.5; 33% hold a bachelor's degree; 62% of homes are owner-occupied; median household income is $91,135.
- Median income
- $91,135
- Median age
- 36.5
- Owner-occupied
- 62.0%
- Bachelor's degree
- 32.6%
- Census median home value
- $367,100
Source: US Census Bureau American Community Survey 5-year estimates.
Similar homes in Atlanta

$224,990
2555 Flat Shoals Rd Apt 1705
3 bd · 3 ba · 1,612 sqft

$595,000
4143 Butler Dr
4 bd · 4 ba · 2,572 sqft

$2,400,000
4250 Carmain Dr NE
5 bd · 7 ba

$175,000
818 Bonneville Ter NW
3 bd · 1 ba · 1,000 sqft

$222,000
2608 Santa Barbara Dr NW
3 bd · 2 ba · 1,764 sqft

$365,000
4060 Clay Dr
3 bd · 2 ba · 1,415 sqft

$244,999
989 Ashby Ter NW
5 bd · 4 ba · 2,400 sqft

$379,000
955 Juniper St NE Unit 3331
2 bd · 2 ba · 1,134 sqft
Browse 8+ nearby homes on the map
See 8 more Atlanta homes on the map
Open map →